Craft Tower
With a wrap-around patio on the main floor and community-style structure, Craft Tower is a one-of-a-kind living opportunity here at MSU that houses 384 residents.
WHY STUDENTS 💙 CRAFT TOWER
- Unique Layout: An eight-story, fully furnished hall you won’t find anywhere else on campus.
- Great Location: Close to Rocky Adkins Dining Commons (The Rock), Eagle Market, the Recreation & Wellness Center, and classroom buildings.
- Flexible Living: Home to the Craft Academy with partial housing for traditional students.
- Break Housing: An option for students who need a place to stay during breaks.
ROOM OPTIONS
- 2-Person Room
- Two twin XL beds
- Two desks and chairs
- Two wardrobes
- Mirror included
- Room size: 13'6" x 11'
- Windows: 2'6" x 5' (blinds provided)
Hall Features
- Community kitchen on the main floor
- Study rooms on each floor
- Two elevators
- Single gender by floor
- Vending machines on the main floor
View Rates
Compare costs for all residence hall options.
SAFETY & SUPPORT
- Card-access building entry
- Key-entry rooms
- Fire suppression system throughout
- Staffed with an Area Coordinator, Resident Advisors, and a Senior Resident Advisor
NEED HELP OR HAVE QUESTIONS?
- Front Desk: 7-9 p.m.
- Student Housing Office: 606-783-2060 (Mon–Fri, 8 a.m.–4:30 p.m.)
- Area Coordinator: Kristen Reed, krreed2@moreheadstate.edu
🔎 TAKE A LOOK AT Craft Tower
An outside view of Craft Tower.
The view shows the arrangement of the 2-person suite with sleeping areas, a fridge and microwave, and decor.
The view shows the arrangement of the sleeping areas in the 2-person suite.
This view shows a student desk, sleeping area, and decor in a 2-person suite.
This view shows a student desk, sleeping area, and decor in a 2-person suite.
Floor plan of an average room in Craft Tower.
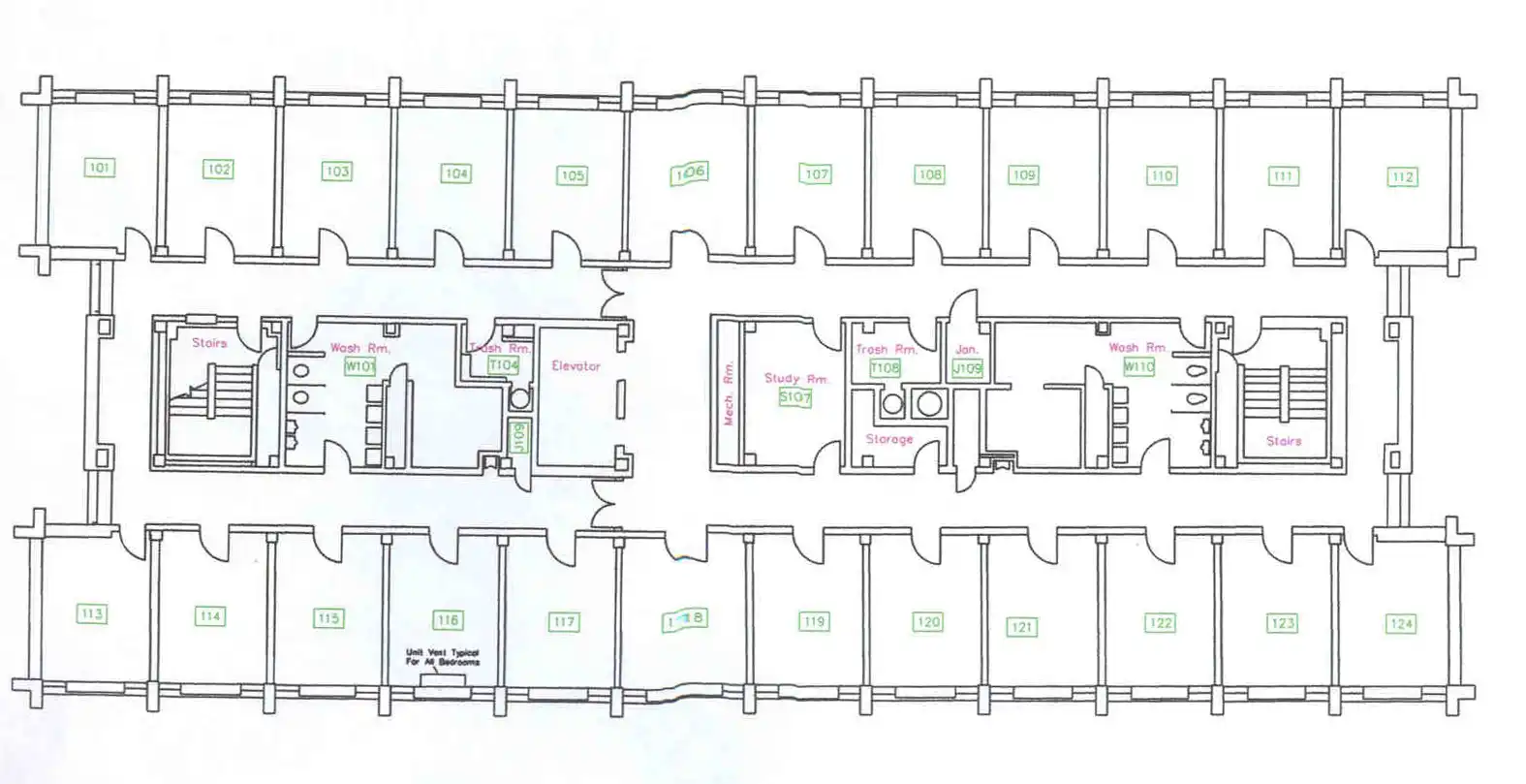
Floor plan of one of the 8 floors of Craft Tower.
Contact Us
Office of Student Housing & Residence Education
200 Earle Clements Lane
Alumni Tower West
UPO 2525
Morehead, KY 40351
EMAIL: housing@moreheadstate.edu
PHONE: 606-783-2060
FAX: 606-783-5062